南浦和駅前大型商業施設 5F(42.03坪) 南浦和 南浦和のクリニック・医院開業物件

TOPページ
クリニック・医院開業物件検索
さいたま市南区のクリニック・医院開業物件情報一覧
南浦和駅前大型商業施設 さいたま市南区のクリニック・医院開業物件
2305007

南浦和駅前大型商業施設 5F さいたま市南区のクリニック・医院開業物件

【建物外観】  【地図】  【その他共有部分】  【その他部屋・スペース】  【その他】  【その他】  【間取】 
【建物外観】 
【地図】 
【その他共有部分】 
【その他部屋・スペース】 
【その他】 
【その他】 
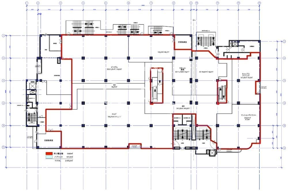
【間取】 
  • 【建物外観】 
  • 【地図】 
  • 【その他共有部分】 
  • 【その他部屋・スペース】 
  • 【その他】 
  • 【その他】 
  • 【間取】 
賃料(坪単価) 63.045万円15,000円 共益費 / 管理費 - / 12.609万円
敷金 / 礼金 坪200,000円 / 保証金 / 償却 / -
所在階 / 階数 5F / 6F 構造
用途 / 契約面積 テナント / 42.03坪(138.94m2 築年月 1978年12月
交通 JR京浜東北・根岸線 「南浦和駅」 徒歩2分
JR武蔵野線 「南浦和駅」 徒歩2分
募集区画 5F@
所在地 埼玉県さいたま市南区南本町1-7-4   周辺MAP
※このサイトに記載がある医院開業物件の賃貸条件は、
 敷金・保証金などの預かり金を除き、税別表記です。

【スタッフからのイチオシポイント!】南浦和駅前大型商業施設

マンション再開発が続く南浦和エリアで、40年以上の営業実績を誇る地域密着施設!
埼玉県さいたま市南区南本町1-7-4にあるクリニック・医院開業物件です。
※物件のもっと詳しい内容や、諸条件のご相談など、ホームページには掲載が間に合わず載せきれていない情報もございます。
気になることが御座いましたらお気軽にメールにてお問い合わせください。
03-6432-7889
株式会社G.C FACTORY
お問い合わせNO:2305007

物件詳細情報

募集診療科目
  • 脳神経外科
  • 整形外科
  • 婦人科
  • 産婦人科
  • 眼科
  • 精神科・心療内科
  • その他
  • 内科系
  • 訪問診療
  • 泌尿器科
こだわり条件
  • 商業施設内
  • 駅近く
  • 住宅街
現況 空家 入居可能日 相談
取引態様 その他 契約態様 定期借家
その他費用
情報更新日 2025年08月22日 次回更新予定日 2025年09月05日

設備詳細情報

備 考 ・食品スーパーをはじめ、日常の買い物が完結する生活密着型施設
・駅チカで通院・通勤に有利な好立地
・大宮駅まで約10分!東北本線・武蔵野線乗り入れで利便性○
・同フロアにて小児科・薬局、別フロアで歯科が盛業中
・地域に根差した施設のため、認知向上が見込める
・耐荷重制限(300kg/m2)があります。機械導入の際はご相談させてください
・契約期間応相談
※各種情報と差異がある場合は現況優先となります

こちらの物件の空き状況

階数 賃料 面積 敷金 礼金 保証金 お気に入り 物件詳細
5F 68.13万円 45.42坪 坪200,000円 お気に入り 物件詳細
5F 101.37万円 67.58坪 坪200,000円 お気に入り 物件詳細
5F 63.045万円 42.03坪 坪200,000円 お気に入り 物件詳細
03-6432-7889
株式会社G.C FACTORY
お問い合わせNO:2305007

この物件に似た物件をチェック!

  • 賃貸テナント 135.09万円

    浦和駅 徒歩3分

    71.10坪(235.04u)

    通行量の多い、さくら草通り沿いで認知度期待

  • 賃貸テナント 112.176万円

    浦和駅 徒歩3分

    59.04坪(195.17u)

    通行量の多い、さくら草通り沿いで認知度期待

  • 賃貸テナント 96.406万円

    浦和駅 徒歩3分

    50.74坪(167.73u)

    通行量の多い、さくら草通り沿いで認知度期待

  • 賃貸テナント 54.288万円

    蕨駅 徒歩2分

    30.16坪(99.70u)

    2つの大きな通りの角地のため視認性良好!

  • 賃貸テナント 54.036万円

    蕨駅 徒歩2分

    30.02坪(99.23u)

    2つの大きな通りの角地のため視認性良好!


閲覧した物件の履歴

閲覧した物件の一覧を見る

最近検索した条件一覧



気になったら今すぐ!カンタンお問合せ



お客様情報
お名前・ご所属
(医療機関名/会社名)
必須
メールアドレス
必須
電話番号
必須

お問い合わせ内容
開業種別
必須
ご希望エリア
必須
予定標榜科目
広さ(下限)
必須
開業予定時期
必須
その他ご要望



※ご入力いただいたお客さまの個人情報は、「個人情報の取扱いについて」に基づき適正に取り扱います。必ずお読みになり、同意の上お問い合わせください。




※ご記入いただいたメールアドレス宛てに、お問合せ内容の確認メールをお送りいたします。
※Yahoo!メールなどのフリーメールをご利用の場合、迷惑メールフォルダに入る場合があります。
 迷惑メールのフォルダ・設定等をご確認下さい。
 


▲ページのTOPへ戻る


お問合せはこちら

株式会社G.C FACTORY 03-6432-7889

G.C FACTORY
4つの特徴service

  • 東京都の医療機関に特化

    東京都と医療機関に
    特化した不動産サイト

  • 開業支援・運営支援実績多数

    開業支援・運営支援を
    経験するチームが
    物件選定

  • 事業承継案件もご紹介

    M&A案件もご紹介可能

  • 仲介手数料割引特典有り

    仲介手数料割引特典

詳しく見る

ニュースinfo

一覧を見る
株式会社G.C FACTORYのスタッフ紹介
株式会社G.C FACTORY(ジーシーファクトリー)

株式会社G.C FACTORY

  • TEL:03-6432-7889
    FAX:03-6745-2669
  • 定休日:土日祝定休
    営業時間:10:00〜19:00
  • 〒150-0002
    東京都渋谷区渋谷2-16-1 Daiwa渋谷宮益坂ビル11F
  • JR山手線、東急線
    東京メトロ副都心線 他
    『渋谷駅』B4出口から
    徒歩約3分
  • 免許番号:
    東京都知事(1)第107792号
詳しく見る