さいたま市岩槻区医療ビル 4F(43.07坪) 埼玉 岩槻のクリニック・医院開業物件

TOPページ
クリニック・医院開業物件検索
さいたま市岩槻区のクリニック・医院開業物件情報一覧
さいたま市岩槻区医療ビル さいたま市岩槻区のクリニック・医院開業物件
2311056

さいたま市岩槻区医療ビル 4F さいたま市岩槻区のクリニック・医院開業物件

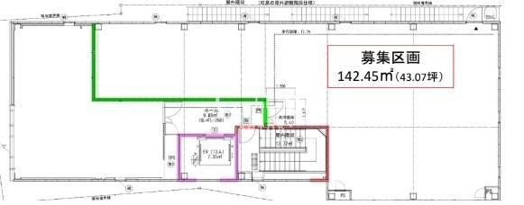
【建物外観】  【間取】 
【建物外観】 
【間取】 
  • 【建物外観】 
  • 【間取】 
賃料(坪単価) 応相談 共益費 / 管理費 - / -
敷金 / 礼金 応相談 / 応相談 保証金 / 償却 / -
所在階 / 階数 4F / 構造
用途 / 契約面積 テナント / 43.07坪(142.38m2 築年月 2024年2月
交通 東武野田線 「岩槻駅」 徒歩6分
募集区画 4F
所在地 埼玉県さいたま市岩槻区本町3-16-2-1   周辺MAP
※このサイトに記載がある医院開業物件の賃貸条件は、
 敷金・保証金などの預かり金を除き、税別表記です。

【スタッフからのイチオシポイント!】さいたま市岩槻区医療ビル

2024年2月オープン予定!
埼玉県さいたま市岩槻区本町3-16-2-1にあるクリニック・医院開業物件です。
※物件のもっと詳しい内容や、諸条件のご相談など、ホームページには掲載が間に合わず載せきれていない情報もございます。
気になることが御座いましたらお気軽にメールにてお問い合わせください。
03-6432-7889
株式会社G.C FACTORY
お問い合わせNO:2311056

物件詳細情報

募集診療科目
  • 脳神経外科
  • 整形外科
  • 婦人科
  • 産婦人科
  • 眼科
  • 耳鼻咽喉科
  • 皮膚科
  • その他
  • 内科系
  • 小児科
  • 訪問診療
  • 泌尿器科
こだわり条件
  • 住宅街
  • 新築物件
  • 医療ビル
現況 入居可能日
取引態様 その他 契約態様
その他費用
情報更新日 2026年04月15日 次回更新予定日 2026年04月29日

設備詳細情報

備 考
※各種情報と差異がある場合は現況優先となります

こちらの物件の空き状況

階数 賃料 面積 敷金 礼金 保証金 お気に入り 物件詳細
4F 応相談 43.07坪 応相談 応相談 お気に入り 物件詳細
03-6432-7889
株式会社G.C FACTORY
お問い合わせNO:2311056

この物件に似た物件をチェック!


閲覧した物件の履歴

閲覧した物件の一覧を見る

最近検索した条件一覧



気になったら今すぐ!カンタンお問合せ



お客様情報
お名前・ご所属
(医療機関名/会社名)
必須
メールアドレス
必須
電話番号
必須

お問い合わせ内容
開業種別
必須
ご希望エリア
必須
予定標榜科目
広さ(下限)
必須
開業予定時期
必須
その他ご要望



※ご入力いただいたお客さまの個人情報は、「個人情報の取扱いについて」に基づき適正に取り扱います。必ずお読みになり、同意の上お問い合わせください。




※ご記入いただいたメールアドレス宛てに、お問合せ内容の確認メールをお送りいたします。
※Yahoo!メールなどのフリーメールをご利用の場合、迷惑メールフォルダに入る場合があります。
 迷惑メールのフォルダ・設定等をご確認下さい。
 


▲ページのTOPへ戻る


お問合せはこちら

株式会社G.C FACTORY 03-6432-7889

G.C FACTORY
4つの特徴service

  • 東京都の医療機関に特化

    東京都と医療機関に
    特化した不動産サイト

  • 開業支援・運営支援実績多数

    開業支援・運営支援を
    経験するチームが
    物件選定

  • 事業承継案件もご紹介

    M&A案件もご紹介可能

  • 仲介手数料割引特典有り

    仲介手数料割引特典

詳しく見る

ニュースinfo

一覧を見る
株式会社G.C FACTORYのスタッフ紹介
株式会社G.C FACTORY(ジーシーファクトリー)

株式会社G.C FACTORY

  • TEL:03-6432-7889
    FAX:03-6745-2669
  • 定休日:土日祝定休
    営業時間:10:00〜19:00
  • 〒150-0002
    東京都渋谷区渋谷2-16-1 Daiwa渋谷宮益坂ビル11F
  • JR山手線、東急線
    東京メトロ副都心線 他
    『渋谷駅』B4出口から
    徒歩約3分
  • 免許番号:
    東京都知事(1)第107792号
詳しく見る