上福岡クリニックモール 2F(39坪) 整形外科 上福岡のクリニック・医院開業物件

TOPページ
クリニック・医院開業物件検索
ふじみ野市のクリニック・医院開業物件情報一覧
上福岡クリニックモール ふじみ野市のクリニック・医院開業物件
2312181

上福岡クリニックモール 2F ふじみ野市のクリニック・医院開業物件

【建物外観】  【間取】  【地図】  【その他】  【その他】  【その他】  【その他】  【その他】  【建物外観】 
【建物外観】 
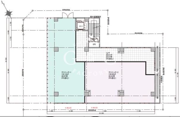
【間取】 
【地図】 
【その他】 
【その他】 
【その他】 
【その他】 
【その他】 
【建物外観】 
  • 【建物外観】 
  • 【間取】 
  • 【地図】 
  • 【その他】 
  • 【その他】 
  • 【その他】 
  • 【その他】 
  • 【その他】 
  • 【建物外観】 
賃料(坪単価) 50.7万円13,000円 共益費 / 管理費 46,800円 / -
敷金 / 礼金 - / 1か月 保証金 / 償却 5ヶ月 / -
所在階 / 階数 2F / 構造
用途 / 契約面積 テナント / 39坪(128.92m2 築年月 2024年月
交通 東武東上線 「上福岡駅」 徒歩2分
募集区画 A
所在地 埼玉県ふじみ野市上福岡1-6-23   周辺MAP
※このサイトに記載がある医院開業物件の賃貸条件は、
 敷金・保証金などの預かり金を除き、税別表記です。

【スタッフからのイチオシポイント!】上福岡クリニックモール

駅近!ねらい目エリアで医療モール計画
埼玉県ふじみ野市上福岡1-6-23にあるクリニック・医院開業物件です。
※物件のもっと詳しい内容や、諸条件のご相談など、ホームページには掲載が間に合わず載せきれていない情報もございます。
気になることが御座いましたらお気軽にメールにてお問い合わせください。
03-6432-7889
株式会社G.C FACTORY
お問い合わせNO:2312181

物件詳細情報

募集診療科目
  • 整形外科
  • 婦人科
  • 産婦人科
  • 眼科
  • 耳鼻咽喉科
  • 皮膚科
  • 精神科・心療内科
  • その他
  • 内科系
  • 小児科
  • 訪問診療
  • 泌尿器科
こだわり条件
  • 優良診療調査
  • 駅近く
  • 医療モール
  • 新築物件
  • 視認性が高い
  • 医療ビル
現況 入居可能日 即入居可
取引態様 その他 契約態様
その他費用
情報更新日 2025年09月18日 次回更新予定日 2025年10月02日

設備詳細情報

備 考 人口・視認性ともに良好!
高齢医師が多く今後ねらい目のエリア。
近隣に約700戸のマンションが完成し、されに人口増加予定です。
駐車場・駐輪場完備はもちろん、提携可能なコインパーキングも多数あり、広範囲からの集患が見込めます!
他地域と比較して受診率が高い地域 ※診療圏・現地調査より
※各種情報と差異がある場合は現況優先となります

こちらの物件の空き状況

階数 賃料 面積 敷金 礼金 保証金 お気に入り 物件詳細
2F 50.7万円 39坪 - 1か月 5ヶ月 お気に入り 物件詳細
2F 55.25万円 42.5坪 - 1か月 5ヶ月 お気に入り 物件詳細
1F 110万円 100坪 - 1か月 5ヶ月 お気に入り 物件詳細
03-6432-7889
株式会社G.C FACTORY
お問い合わせNO:2312181

この物件に似た物件をチェック!


閲覧した物件の履歴

閲覧した物件の一覧を見る

最近検索した条件一覧



気になったら今すぐ!カンタンお問合せ



お客様情報
お名前・ご所属
(医療機関名/会社名)
必須
メールアドレス
必須
電話番号
必須

お問い合わせ内容
開業種別
必須
ご希望エリア
必須
予定標榜科目
広さ(下限)
必須
開業予定時期
必須
その他ご要望



※ご入力いただいたお客さまの個人情報は、「個人情報の取扱いについて」に基づき適正に取り扱います。必ずお読みになり、同意の上お問い合わせください。




※ご記入いただいたメールアドレス宛てに、お問合せ内容の確認メールをお送りいたします。
※Yahoo!メールなどのフリーメールをご利用の場合、迷惑メールフォルダに入る場合があります。
 迷惑メールのフォルダ・設定等をご確認下さい。
 


▲ページのTOPへ戻る


お問合せはこちら

株式会社G.C FACTORY 03-6432-7889

G.C FACTORY
4つの特徴service

  • 東京都の医療機関に特化

    東京都と医療機関に
    特化した不動産サイト

  • 開業支援・運営支援実績多数

    開業支援・運営支援を
    経験するチームが
    物件選定

  • 事業承継案件もご紹介

    M&A案件もご紹介可能

  • 仲介手数料割引特典有り

    仲介手数料割引特典

詳しく見る

ニュースinfo

一覧を見る
株式会社G.C FACTORYのスタッフ紹介
株式会社G.C FACTORY(ジーシーファクトリー)

株式会社G.C FACTORY

  • TEL:03-6432-7889
    FAX:03-6745-2669
  • 定休日:土日祝定休
    営業時間:10:00〜19:00
  • 〒150-0002
    東京都渋谷区渋谷2-16-1 Daiwa渋谷宮益坂ビル11F
  • JR山手線、東急線
    東京メトロ副都心線 他
    『渋谷駅』B4出口から
    徒歩約3分
  • 免許番号:
    東京都知事(1)第107792号
詳しく見る