2階(40.64坪) 玉川大エリア 用賀のクリニック・医院開業物件

TOPページ
クリニック・医院開業物件検索
世田谷区のクリニック・医院開業物件情報一覧
世田谷区のクリニック・医院開業物件
2407045

2階 世田谷区のクリニック・医院開業物件

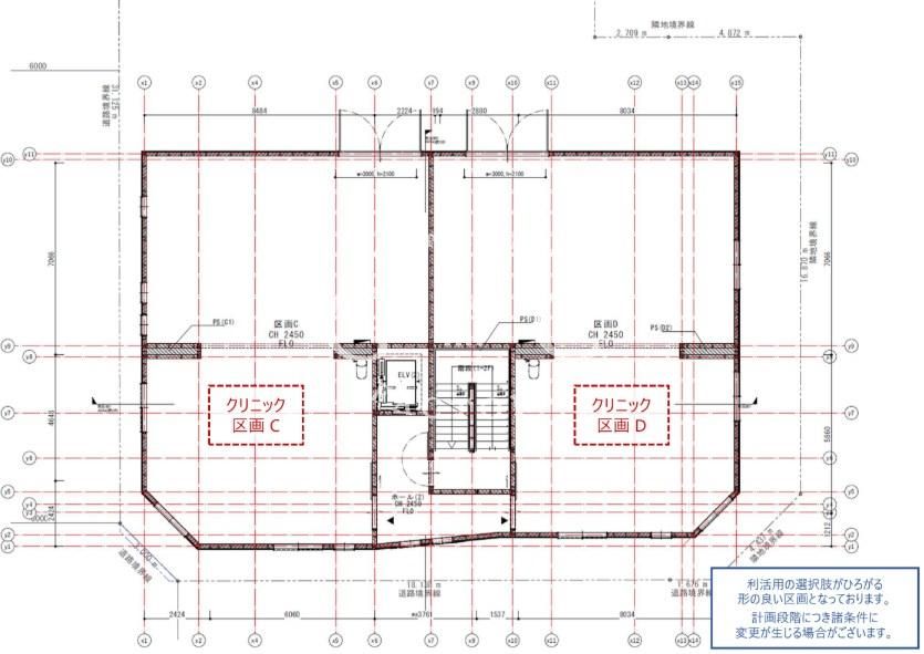
【建物外観】  【建物外観】  【建物外観】  【間取】  【間取】  【間取】  【建物外観】  【建物外観】 
【建物外観】 
【建物外観】 
【建物外観】 
【間取】 
【間取】 
【間取】 
【建物外観】 
【建物外観】 
  • 【建物外観】 
  • 【建物外観】 
  • 【建物外観】 
  • 【間取】 
  • 【間取】 
  • 【間取】 
  • 【建物外観】 
  • 【建物外観】 
賃料(坪単価) 66.5018万円約16,364円 共益費 / 管理費 45,455円 / -
敷金 / 礼金 6ヶ月 / 1ヶ月 保証金 / 償却 / -
所在階 / 階数 2階 / 3階 構造
用途 / 契約面積 テナント / 40.64坪(134.34m2 築年月 2025年5月
交通 東急田園都市線 「用賀駅」 徒歩6分
募集区画 区画D
所在地 東京都世田谷区玉川台2-30   周辺MAP
※このサイトに記載がある医院開業物件の賃貸条件は、
 敷金・保証金などの預かり金を除き、税別表記です。

【スタッフからのイチオシポイント!】

好アクセスの立地でありながら医療機関が乏しいエリア
東京都世田谷区玉川台2-30にあるクリニック・医院開業物件です。
※物件のもっと詳しい内容や、諸条件のご相談など、ホームページには掲載が間に合わず載せきれていない情報もございます。
気になることが御座いましたらお気軽にメールにてお問い合わせください。
03-6432-7889
株式会社G.C FACTORY
お問い合わせNO:2407045

物件詳細情報

募集診療科目
  • 脳神経外科
  • 整形外科
  • 婦人科
  • 産婦人科
  • 眼科
  • 耳鼻咽喉科
  • 皮膚科
  • 精神科・心療内科
  • その他
  • 内科系
  • 小児科
  • 訪問診療
  • 泌尿器科
こだわり条件
  • 医療モール
  • 住宅街
  • 新築物件
  • 視認性が高い
現況 入居可能日 即入居可
取引態様 その他 契約態様
その他費用
情報更新日 2026年01月28日 次回更新予定日 2026年02月11日

設備詳細情報

備 考 ・別途、休憩室の区画も任意で賃貸が可能
・玉川台エリアは、東急田園都市線 用賀駅徒歩圏内に環状第8号線、国道246号、
東名高速道路が交わる好アクセスの立地でありながら医療機関が乏しいエリアです。
・和の雰囲気を持ちながら緑豊かな玉川台のまちに馴染むモダンな外観デザインのクリニックモールです。
・伝統的な麻の葉文様を金属素材で表現したファサードによりルーバーとしての機能性と美しさを両立したデザインです。
※各種情報と差異がある場合は現況優先となります

こちらの物件の空き状況

階数 賃料 面積 敷金 礼金 保証金 お気に入り 物件詳細
1階 73.1818万円 40.25坪 6ヶ月 1ヶ月 お気に入り 物件詳細
1階 73.3455万円 40.34坪 6ヶ月 1ヶ月 お気に入り 物件詳細
2階 66.3709万円 40.56坪 6ヶ月 1ヶ月 お気に入り 物件詳細
2階 66.5018万円 40.64坪 6ヶ月 1ヶ月 お気に入り 物件詳細
03-6432-7889
株式会社G.C FACTORY
お問い合わせNO:2407045

この物件に似た物件をチェック!

  • 賃貸テナント 30.924万円

    藤が丘駅 徒歩5分

    25.77坪(85.19u)

    1階にコンビニが入居し集客力のある立地!角地で視認性良好!

  • 賃貸テナント 50.428万円

    宮前平駅 徒歩1分

    36.02坪(119.07u)

    ・田園都市線『宮前平駅』徒歩1分で駅改札、バスロータリーより視認でき立地良好!

  • 賃貸テナント 60.786万円

    青葉台駅 徒歩3分

    36.84坪(121.78u)

    集客力の高いスーパーマーケットが入居予定で認知性が高い!

  • 賃貸テナント 67.4355万円

    青葉台駅 徒歩3分

    40.87坪(135.10u)

    集客力の高いスーパーマーケットが入居予定で認知性が高い!

  • 賃貸テナント 93.555万円

    青葉台駅 徒歩3分

    56.70坪(187.43u)

    集客力の高いスーパーマーケットが入居予定で認知性が高い!


閲覧した物件の履歴

閲覧した物件の一覧を見る

最近検索した条件一覧



気になったら今すぐ!カンタンお問合せ



お客様情報
お名前・ご所属
(医療機関名/会社名)
必須
メールアドレス
必須
電話番号
必須

お問い合わせ内容
開業種別
必須
ご希望エリア
必須
予定標榜科目
広さ(下限)
必須
開業予定時期
必須
その他ご要望



※ご入力いただいたお客さまの個人情報は、「個人情報の取扱いについて」に基づき適正に取り扱います。必ずお読みになり、同意の上お問い合わせください。




※ご記入いただいたメールアドレス宛てに、お問合せ内容の確認メールをお送りいたします。
※Yahoo!メールなどのフリーメールをご利用の場合、迷惑メールフォルダに入る場合があります。
 迷惑メールのフォルダ・設定等をご確認下さい。
 


▲ページのTOPへ戻る


お問合せはこちら

株式会社G.C FACTORY 03-6432-7889

G.C FACTORY
4つの特徴service

  • 東京都の医療機関に特化

    東京都と医療機関に
    特化した不動産サイト

  • 開業支援・運営支援実績多数

    開業支援・運営支援を
    経験するチームが
    物件選定

  • 事業承継案件もご紹介

    M&A案件もご紹介可能

  • 仲介手数料割引特典有り

    仲介手数料割引特典

詳しく見る

ニュースinfo

一覧を見る
株式会社G.C FACTORYのスタッフ紹介
株式会社G.C FACTORY(ジーシーファクトリー)

株式会社G.C FACTORY

  • TEL:03-6432-7889
    FAX:03-6745-2669
  • 定休日:土日祝定休
    営業時間:10:00〜19:00
  • 〒150-0002
    東京都渋谷区渋谷2-16-1 Daiwa渋谷宮益坂ビル11F
  • JR山手線、東急線
    東京メトロ副都心線 他
    『渋谷駅』B4出口から
    徒歩約3分
  • 免許番号:
    東京都知事(1)第107792号
詳しく見る