溝の口医療モール ※分割および複数階賃借は相談可能 2階(27.19坪) 溝の口 溝の口のクリニック・医院開業物件

TOPページ
クリニック・医院開業物件検索
川崎市高津区のクリニック・医院開業物件情報一覧
溝の口医療モール ※分割および複数階賃借は相談可能 川崎市高津区のクリニック・医院開業物件
2510133

溝の口医療モール ※分割および複数階賃借は相談可能 2階 川崎市高津区のクリニック・医院開業物件

【建物外観】  【間取】  【地図】 
【建物外観】 
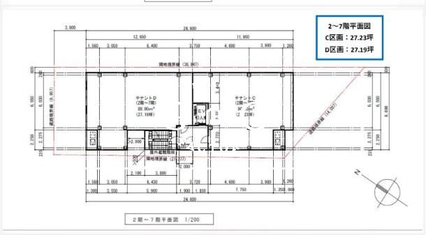
【間取】 
【地図】 
  • 【建物外観】 
  • 【間取】 
  • 【地図】 
賃料(坪単価) お問合せください~26,000円 共益費 / 管理費 - / -
敷金 / 礼金 お問合せください / お問合せください 保証金 / 償却 / -
所在階 / 階数 2階 / 7階 構造
用途 / 契約面積 テナント / 27.19坪(89.88m2 築年月 2027年月
交通 東急田園都市線 「溝の口駅」 徒歩5分
東急大井町線 「溝の口駅」 徒歩5分
募集区画 2階D区画
所在地 神奈川県川崎市高津区溝口2丁目13-5   周辺MAP
※このサイトに記載がある医院開業物件の賃貸条件は、
 敷金・保証金などの預かり金を除き、税別表記です。

【スタッフからのイチオシポイント!】溝の口医療モール ※分割および複数階賃借は相談可能

溝の口駅 徒歩5分 新築クリニックモール計画
神奈川県川崎市高津区溝口2丁目13-5にあるクリニック・医院開業物件です。
※物件のもっと詳しい内容や、諸条件のご相談など、ホームページには掲載が間に合わず載せきれていない情報もございます。
気になることが御座いましたらお気軽にメールにてお問い合わせください。
03-6432-7889
株式会社G.C FACTORY
お問い合わせNO:2510133

物件詳細情報

募集診療科目
  • 脳神経外科
  • 整形外科
  • 婦人科
  • 産婦人科
  • 眼科
  • 耳鼻咽喉科
  • 皮膚科
  • 精神科・心療内科
  • 内科系
  • 小児科
  • 泌尿器科
こだわり条件
  • 新築物件
  • 視認性が高い
現況 入居可能日
取引態様 その他 契約態様
その他費用
情報更新日 2026年04月14日 次回更新予定日 2026年04月28日

設備詳細情報

備 考 駅から徒歩数分の生活・買物動線上にあり、日常利用・目的来訪ともに
導線が強く、早期の認知と集患が見込めます。
※各種情報と差異がある場合は現況優先となります

こちらの物件の空き状況

階数 賃料 面積 敷金 礼金 保証金 お気に入り 物件詳細
2階 お問合せください 27.23坪 お問合せください お問合せください お気に入り 物件詳細
3階 お問合せください 27.23坪 お問合せください お問合せください お気に入り 物件詳細
4階 お問合せください 27.23坪 お問合せください お問合せください お気に入り 物件詳細
5階 お問合せください 27.23坪 お問合せください お問合せください お気に入り 物件詳細
6階 お問合せください 27.23坪 お問合せください お問合せください お気に入り 物件詳細
7階 お問合せください 27.23坪 お問合せください お問合せください お気に入り 物件詳細
2階 お問合せください 27.19坪 お問合せください お問合せください お気に入り 物件詳細
3階 お問合せください 27.19坪 お問合せください お問合せください お気に入り 物件詳細
4階 お問合せください 27.19坪 お問合せください お問合せください お気に入り 物件詳細
5階 お問合せください 27.19坪 お問合せください お問合せください お気に入り 物件詳細
6階 お問合せください 27.19坪 お問合せください お問合せください お気に入り 物件詳細
7階 お問合せください 27.19坪 お問合せください お問合せください お気に入り 物件詳細
03-6432-7889
株式会社G.C FACTORY
お問い合わせNO:2510133

この物件に似た物件をチェック!

  • 賃貸テナント お問合せください

    自由が丘駅 徒歩4分

    35.00坪(115.70u)

    自由が丘駅 徒歩4分!スタイリッシュな建物の医療モール

  • 賃貸テナント 87.2万円

    長津田駅 徒歩1分

    43.60坪(144.13u)

    長津田駅 徒歩1分の駅前1階物件

  • 賃貸テナント 108.46万円

    長津田駅 徒歩1分

    54.23坪(179.27u)

    長津田駅 徒歩1分の駅前1階物件

  • 賃貸テナント お問合せください

    溝の口駅 徒歩5分

    0.00(u)

    溝の口駅 徒歩5分 新築クリニックモール計画

  • 賃貸テナント 応相談

    市が尾駅 徒歩1分

    45.00坪(148.76u)

    駅前通りで人が多く視認性良好!線路からも建物が視認できます。


閲覧した物件の履歴

閲覧した物件の一覧を見る

最近検索した条件一覧



気になったら今すぐ!カンタンお問合せ



お客様情報
お名前・ご所属
(医療機関名/会社名)
必須
メールアドレス
必須
電話番号
必須

お問い合わせ内容
開業種別
必須
ご希望エリア
必須
予定標榜科目
広さ(下限)
必須
開業予定時期
必須
その他ご要望



※ご入力いただいたお客さまの個人情報は、「個人情報の取扱いについて」に基づき適正に取り扱います。必ずお読みになり、同意の上お問い合わせください。




※ご記入いただいたメールアドレス宛てに、お問合せ内容の確認メールをお送りいたします。
※Yahoo!メールなどのフリーメールをご利用の場合、迷惑メールフォルダに入る場合があります。
 迷惑メールのフォルダ・設定等をご確認下さい。
 


▲ページのTOPへ戻る


お問合せはこちら

株式会社G.C FACTORY 03-6432-7889

G.C FACTORY
4つの特徴service

  • 東京都の医療機関に特化

    東京都と医療機関に
    特化した不動産サイト

  • 開業支援・運営支援実績多数

    開業支援・運営支援を
    経験するチームが
    物件選定

  • 事業承継案件もご紹介

    M&A案件もご紹介可能

  • 仲介手数料割引特典有り

    仲介手数料割引特典

詳しく見る

ニュースinfo

一覧を見る
株式会社G.C FACTORYのスタッフ紹介
株式会社G.C FACTORY(ジーシーファクトリー)

株式会社G.C FACTORY

  • TEL:03-6432-7889
    FAX:03-6745-2669
  • 定休日:土日祝定休
    営業時間:10:00〜19:00
  • 〒150-0002
    東京都渋谷区渋谷2-16-1 Daiwa渋谷宮益坂ビル11F
  • JR山手線、東急線
    東京メトロ副都心線 他
    『渋谷駅』B4出口から
    徒歩約3分
  • 免許番号:
    東京都知事(1)第107792号
詳しく見る