蕨市本町1丁目計画 2階(78.62坪) 蕨 蕨のクリニック・医院開業物件

TOPページ
クリニック・医院開業物件検索
蕨市のクリニック・医院開業物件情報一覧
蕨市本町1丁目計画 蕨市のクリニック・医院開業物件
2510159

蕨市本町1丁目計画 2階 蕨市のクリニック・医院開業物件

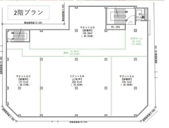
【建物外観】  【間取】 
【建物外観】 
【間取】 
  • 【建物外観】 
  • 【間取】 
賃料(坪単価) 117.93万円15,000円 共益費 / 管理費 - / -
敷金 / 礼金 お問合せください / お問合せください 保証金 / 償却 / -
所在階 / 階数 2階 / 3階 構造
用途 / 契約面積 テナント / 78.62坪(259.9m2 築年月 2028年4月
交通 JR京浜東北・根岸線 「蕨駅」 徒歩1分
募集区画 2階B
所在地 埼玉県蕨市中央1丁目   周辺MAP
※このサイトに記載がある医院開業物件の賃貸条件は、
 敷金・保証金などの預かり金を除き、税別表記です。

【スタッフからのイチオシポイント!】蕨市本町1丁目計画

JR 蕨駅から徒歩1分の新築テナントビル計画
埼玉県蕨市中央1丁目にあるクリニック・医院開業物件です。
※物件のもっと詳しい内容や、諸条件のご相談など、ホームページには掲載が間に合わず載せきれていない情報もございます。
気になることが御座いましたらお気軽にメールにてお問い合わせください。
03-6432-7889
株式会社G.C FACTORY
お問い合わせNO:2510159

物件詳細情報

募集診療科目
  • 脳神経外科
  • 整形外科
  • 婦人科
  • 産婦人科
  • 眼科
  • 耳鼻咽喉科
  • 皮膚科
  • 精神科・心療内科
  • 内科系
  • 小児科
  • 泌尿器科
こだわり条件
  • 駅近く
  • 医療モール
  • 新築物件
現況 入居可能日
取引態様 その他 契約態様
その他費用
情報更新日 2026年04月14日 次回更新予定日 2026年04月28日

設備詳細情報

備 考 蕨駅西口再開発エリアの隣地で、今後の発展が見込める立地です。
※各種情報と差異がある場合は現況優先となります

こちらの物件の空き状況

階数 賃料 面積 敷金 礼金 保証金 お気に入り 物件詳細
2階 58.59万円 39.06坪 お問合せください お問合せください お気に入り 物件詳細
2階 117.93万円 78.62坪 お問合せください お問合せください お気に入り 物件詳細
2階 57.855万円 38.57坪 お問合せください お問合せください お気に入り 物件詳細
2階 74.895万円 49.93坪 お問合せください お問合せください お気に入り 物件詳細
03-6432-7889
株式会社G.C FACTORY
お問い合わせNO:2510159

この物件に似た物件をチェック!

  • 賃貸テナント 135.09万円

    浦和駅 徒歩3分

    71.10坪(235.04u)

    通行量の多い、さくら草通り沿いで認知度期待

  • 賃貸テナント 112.176万円

    浦和駅 徒歩3分

    59.04坪(195.17u)

    通行量の多い、さくら草通り沿いで認知度期待

  • 賃貸テナント 96.406万円

    浦和駅 徒歩3分

    50.74坪(167.73u)

    通行量の多い、さくら草通り沿いで認知度期待

  • 賃貸テナント 54.288万円

    蕨駅 徒歩2分

    30.16坪(99.70u)

    2つの大きな通りの角地のため視認性良好!

  • 賃貸テナント 54.036万円

    蕨駅 徒歩2分

    30.02坪(99.23u)

    2つの大きな通りの角地のため視認性良好!


閲覧した物件の履歴

閲覧した物件の一覧を見る

最近検索した条件一覧



気になったら今すぐ!カンタンお問合せ



お客様情報
お名前・ご所属
(医療機関名/会社名)
必須
メールアドレス
必須
電話番号
必須

お問い合わせ内容
開業種別
必須
ご希望エリア
必須
予定標榜科目
広さ(下限)
必須
開業予定時期
必須
その他ご要望



※ご入力いただいたお客さまの個人情報は、「個人情報の取扱いについて」に基づき適正に取り扱います。必ずお読みになり、同意の上お問い合わせください。




※ご記入いただいたメールアドレス宛てに、お問合せ内容の確認メールをお送りいたします。
※Yahoo!メールなどのフリーメールをご利用の場合、迷惑メールフォルダに入る場合があります。
 迷惑メールのフォルダ・設定等をご確認下さい。
 


▲ページのTOPへ戻る


お問合せはこちら

株式会社G.C FACTORY 03-6432-7889

G.C FACTORY
4つの特徴service

  • 東京都の医療機関に特化

    東京都と医療機関に
    特化した不動産サイト

  • 開業支援・運営支援実績多数

    開業支援・運営支援を
    経験するチームが
    物件選定

  • 事業承継案件もご紹介

    M&A案件もご紹介可能

  • 仲介手数料割引特典有り

    仲介手数料割引特典

詳しく見る

ニュースinfo

一覧を見る
株式会社G.C FACTORYのスタッフ紹介
株式会社G.C FACTORY(ジーシーファクトリー)

株式会社G.C FACTORY

  • TEL:03-6432-7889
    FAX:03-6745-2669
  • 定休日:土日祝定休
    営業時間:10:00〜19:00
  • 〒150-0002
    東京都渋谷区渋谷2-16-1 Daiwa渋谷宮益坂ビル11F
  • JR山手線、東急線
    東京メトロ副都心線 他
    『渋谷駅』B4出口から
    徒歩約3分
  • 免許番号:
    東京都知事(1)第107792号
詳しく見る