VORT芝浦WaterFront 7階(52.45坪) 田町のクリニック・医院開業物件

TOPページ
クリニック・医院開業物件検索
港区のクリニック・医院開業物件情報一覧
VORT芝浦WaterFront 港区のクリニック・医院開業物件
2603044

VORT芝浦WaterFront 7階 港区のクリニック・医院開業物件

【建物外観】  【間取】  【地図】  【建物外観】  【その他】  【その他】  【建物外観】 
【建物外観】 
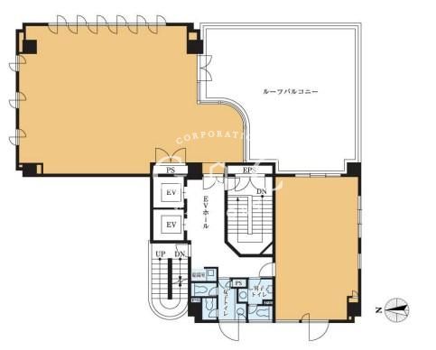
【間取】 
【地図】 
【建物外観】 
【その他】 
【その他】 
【建物外観】 
  • 【建物外観】 
  • 【間取】 
  • 【地図】 
  • 【建物外観】 
  • 【その他】 
  • 【その他】 
  • 【建物外観】 
賃料(坪単価) 調整中調整中 共益費 / 管理費 賃料に含む / -
敷金 / 礼金 5ヶ月 / 1ヶ月 保証金 / 償却 / -
所在階 / 階数 7階 / 地下1階 地上7階 構造
用途 / 契約面積 テナント / 52.45坪(173.38m2 築年月 1989年2月
交通 JR山手線 「田町駅」 徒歩10分
JR京浜東北・根岸線 「田町駅」 徒歩10分
都営浅草線 「三田駅」 徒歩13分
都営三田線 「三田駅」 徒歩13分
募集区画 7階
所在地 東京都港区芝浦四丁目12番31号   周辺MAP
※このサイトに記載がある医院開業物件の賃貸条件は、
 敷金・保証金などの預かり金を除き、税別表記です。

【スタッフからのイチオシポイント!】VORT芝浦WaterFront

東京都港区芝浦四丁目12番31号にあるクリニック・医院開業物件です。
※物件のもっと詳しい内容や、諸条件のご相談など、ホームページには掲載が間に合わず載せきれていない情報もございます。
気になることが御座いましたらお気軽にメールにてお問い合わせください。
03-6432-7889
株式会社G.C FACTORY
お問い合わせNO:2603044

物件詳細情報

募集診療科目
  • 脳神経外科
  • 整形外科
  • 婦人科
  • 産婦人科
  • 眼科
  • 耳鼻咽喉科
  • 皮膚科
  • 美容系
  • 精神科・心療内科
  • 人工透析
  • 歯科
  • その他
  • 内科系
  • 小児科
  • 訪問診療
  • 泌尿器科
こだわり条件
    現況 入居可能日
    取引態様 媒介 契約態様
    その他費用
    情報更新日 2026年03月05日 次回更新予定日 2026年03月19日

    設備詳細情報

    備 考
    ※各種情報と差異がある場合は現況優先となります

    こちらの物件の空き状況

    階数 賃料 面積 敷金 礼金 保証金 お気に入り 物件詳細
    7階 調整中 52.45坪 5ヶ月 1ヶ月 お気に入り 物件詳細
    03-6432-7889
    株式会社G.C FACTORY
    お問い合わせNO:2603044

    この物件に似た物件をチェック!

    • 賃貸テナント 54.288万円

      蕨駅 徒歩6分

      30.16坪(99.70u)

      2つの大きな通りの角地のため視認性良好!

    • 賃貸テナント 54.036万円

      蕨駅 徒歩6分

      30.02坪(99.23u)

      2つの大きな通りの角地のため視認性良好!

    • 賃貸テナント 54.288万円

      蕨駅 徒歩6分

      30.16坪(99.70u)

      2つの大きな通りの角地のため視認性良好!

    • 賃貸テナント 54.036万円

      蕨駅 徒歩6分

      30.02坪(99.23u)

      2つの大きな通りの角地のため視認性良好!

    • 賃貸テナント 108.864万円

      蕨駅 徒歩6分

      60.48坪(199.93u)

      2つの大きな通りの角地のため視認性良好!


    閲覧した物件の履歴

    閲覧した物件の一覧を見る

    最近検索した条件一覧



    気になったら今すぐ!カンタンお問合せ



    お客様情報
    お名前・ご所属
    (医療機関名/会社名)
    必須
    メールアドレス
    必須
    電話番号
    必須

    お問い合わせ内容
    開業種別
    必須
    ご希望エリア
    必須
    予定標榜科目
    広さ(下限)
    必須
    開業予定時期
    必須
    その他ご要望



    ※ご入力いただいたお客さまの個人情報は、「個人情報の取扱いについて」に基づき適正に取り扱います。必ずお読みになり、同意の上お問い合わせください。




    ※ご記入いただいたメールアドレス宛てに、お問合せ内容の確認メールをお送りいたします。
    ※Yahoo!メールなどのフリーメールをご利用の場合、迷惑メールフォルダに入る場合があります。
     迷惑メールのフォルダ・設定等をご確認下さい。
     


    ▲ページのTOPへ戻る


    お問合せはこちら

    株式会社G.C FACTORY 03-6432-7889

    G.C FACTORY
    4つの特徴service

    • 東京都の医療機関に特化

      東京都と医療機関に
      特化した不動産サイト

    • 開業支援・運営支援実績多数

      開業支援・運営支援を
      経験するチームが
      物件選定

    • 事業承継案件もご紹介

      M&A案件もご紹介可能

    • 仲介手数料割引特典有り

      仲介手数料割引特典

    詳しく見る

    ニュースinfo

    一覧を見る
    株式会社G.C FACTORYのスタッフ紹介
    株式会社G.C FACTORY(ジーシーファクトリー)

    株式会社G.C FACTORY

    • TEL:03-6432-7889
      FAX:03-6745-2669
    • 定休日:土日祝定休
      営業時間:10:00〜19:00
    • 〒150-0002
      東京都渋谷区渋谷2-16-1 Daiwa渋谷宮益坂ビル11F
    • JR山手線、東急線
      東京メトロ副都心線 他
      『渋谷駅』B4出口から
      徒歩約3分
    • 免許番号:
      東京都知事(1)第107792号
    詳しく見る