フォーラムたまプラーザ 3階(45.46坪) たまプラーザ たまプラーザのクリニック・医院開業物件

TOPページ
クリニック・医院開業物件検索
横浜市青葉区のクリニック・医院開業物件情報一覧
フォーラムたまプラーザ 横浜市青葉区のクリニック・医院開業物件
2603094

フォーラムたまプラーザ 3階 横浜市青葉区のクリニック・医院開業物件

【建物外観】  【間取】  【その他】  【地図】 
【建物外観】 
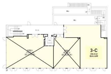
【間取】 
【その他】 
【地図】 
  • 【建物外観】 
  • 【間取】 
  • 【その他】 
  • 【地図】 
賃料(坪単価) 86.38万円19,001円 共益費 / 管理費 182,000円 / -
敷金 / 礼金 8ヶ月 / - 保証金 / 償却 / -
所在階 / 階数 3階 / 4階 構造
用途 / 契約面積 テナント / 45.46坪(150.28m2 築年月 2016年月
交通 東急田園都市線 「たまプラーザ駅」 徒歩4分
募集区画 3階3C
所在地 神奈川県横浜市青葉区新石川2-4-12   周辺MAP
※このサイトに記載がある医院開業物件の賃貸条件は、
 敷金・保証金などの預かり金を除き、税別表記です。

【スタッフからのイチオシポイント!】フォーラムたまプラーザ

「たまプラーザ」駅地下ビル 1階区画!
神奈川県横浜市青葉区新石川2-4-12にあるクリニック・医院開業物件です。
※物件のもっと詳しい内容や、諸条件のご相談など、ホームページには掲載が間に合わず載せきれていない情報もございます。
気になることが御座いましたらお気軽にメールにてお問い合わせください。
03-6432-7889
株式会社G.C FACTORY
お問い合わせNO:2603094

物件詳細情報

募集診療科目
  • 脳神経外科
  • 整形外科
  • 婦人科
  • 産婦人科
  • 眼科
  • 耳鼻咽喉科
  • 皮膚科
  • 精神科・心療内科
  • その他
  • 小児科
  • 泌尿器科
こだわり条件
  • 視認性が高い
現況 入居可能日
取引態様 その他 契約態様 定期借家
その他費用
情報更新日 2026年04月03日 次回更新予定日 2026年04月17日

設備詳細情報

備 考 ・雨天時も途中まで駅通路があり
・隣地にコインパーキングあり
・お客様駐輪スペース有
・共用部に男女トイレ、授乳室、多目的トイレあり
・看板使用料 22,000円(月額・税込)
※各種情報と差異がある場合は現況優先となります

こちらの物件の空き状況

階数 賃料 面積 敷金 礼金 保証金 お気に入り 物件詳細
1階 71.8万円 29.89坪 10ヶ月 - お気に入り 物件詳細
1階 67.3万円 29.26坪 10ヶ月 - お気に入り 物件詳細
3階 86.38万円 45.46坪 8ヶ月 - お気に入り 物件詳細
03-6432-7889
株式会社G.C FACTORY
お問い合わせNO:2603094

この物件に似た物件をチェック!


閲覧した物件の履歴

閲覧した物件の一覧を見る

最近検索した条件一覧



気になったら今すぐ!カンタンお問合せ



お客様情報
お名前・ご所属
(医療機関名/会社名)
必須
メールアドレス
必須
電話番号
必須

お問い合わせ内容
開業種別
必須
ご希望エリア
必須
予定標榜科目
広さ(下限)
必須
開業予定時期
必須
その他ご要望



※ご入力いただいたお客さまの個人情報は、「個人情報の取扱いについて」に基づき適正に取り扱います。必ずお読みになり、同意の上お問い合わせください。




※ご記入いただいたメールアドレス宛てに、お問合せ内容の確認メールをお送りいたします。
※Yahoo!メールなどのフリーメールをご利用の場合、迷惑メールフォルダに入る場合があります。
 迷惑メールのフォルダ・設定等をご確認下さい。
 


▲ページのTOPへ戻る


お問合せはこちら

株式会社G.C FACTORY 03-6432-7889

G.C FACTORY
4つの特徴service

  • 東京都の医療機関に特化

    東京都と医療機関に
    特化した不動産サイト

  • 開業支援・運営支援実績多数

    開業支援・運営支援を
    経験するチームが
    物件選定

  • 事業承継案件もご紹介

    M&A案件もご紹介可能

  • 仲介手数料割引特典有り

    仲介手数料割引特典

詳しく見る

ニュースinfo

一覧を見る
株式会社G.C FACTORYのスタッフ紹介
株式会社G.C FACTORY(ジーシーファクトリー)

株式会社G.C FACTORY

  • TEL:03-6432-7889
    FAX:03-6745-2669
  • 定休日:土日祝定休
    営業時間:10:00〜19:00
  • 〒150-0002
    東京都渋谷区渋谷2-16-1 Daiwa渋谷宮益坂ビル11F
  • JR山手線、東急線
    東京メトロ副都心線 他
    『渋谷駅』B4出口から
    徒歩約3分
  • 免許番号:
    東京都知事(1)第107792号
詳しく見る